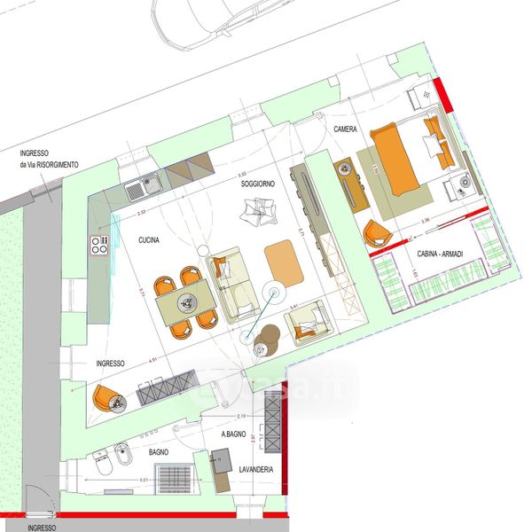
Appartamento in vendita Via Risorgimento 5, Busca
Salva
Casa.it
1/20
  • Street View
  • Map