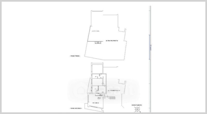
Appartamento in vendita Via Martiri della Libertà , Busca
Salva
Casa.it
1/32
  • Street View
  • Map