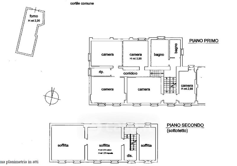
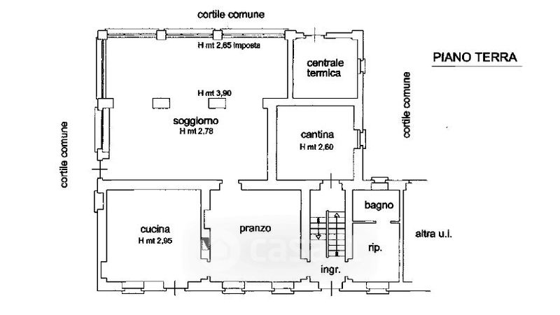
Appartamento in vendita Argine Malpensata , Casale Monferrato
Salva
Casa.it
1/38
  • Street View
  • Map