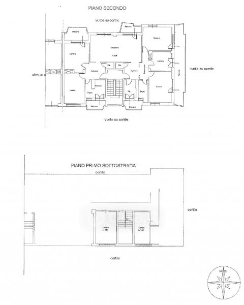
Appartamento in vendita Via Alfredo Piacibello 4, Casale Monferrato
Salva
Casa.it
1/24
  • Street View
  • Map