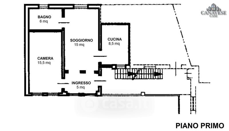
Appartamento in vendita Via Massimo d'Azeglio 116, Castellamonte
Salva
Casa.it
1/20
  • Street View
  • Map