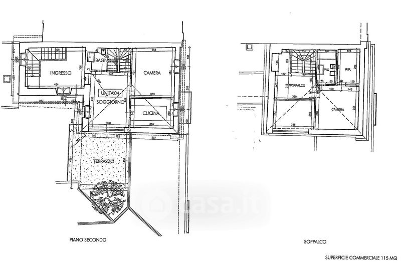
Appartamento in affitto Via Vittorio Emanuele II 38, Chieri
Salva
Casa.it
1/45
  • Street View
  • Map