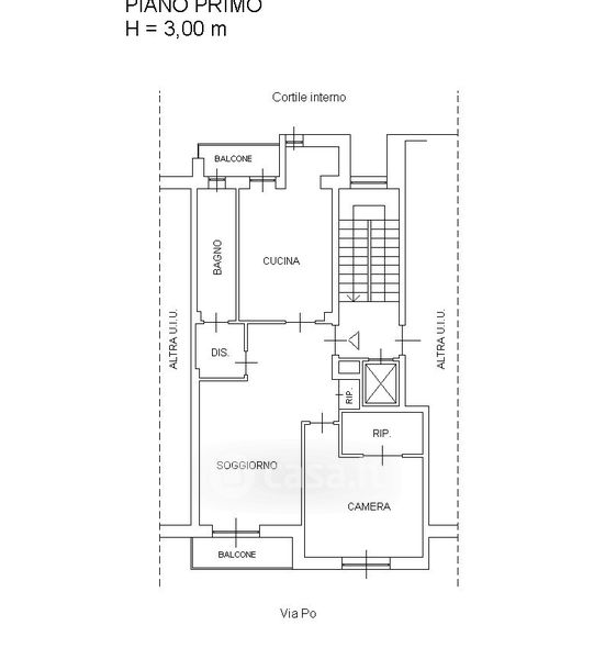
Appartamento in vendita Via Po 30, Chivasso
Salva
Casa.it
1/25
  • Street View
  • Map