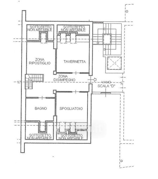
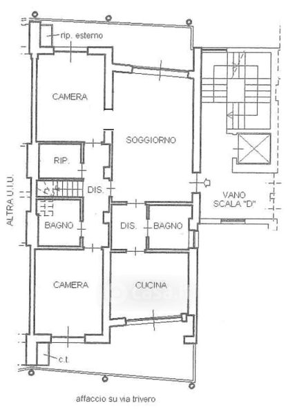
Appartamento in vendita Via Pasquale Trivero 13, Ciriè
Salva
Casa.it
1/33
  • Street View
  • Map