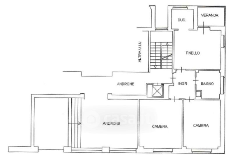
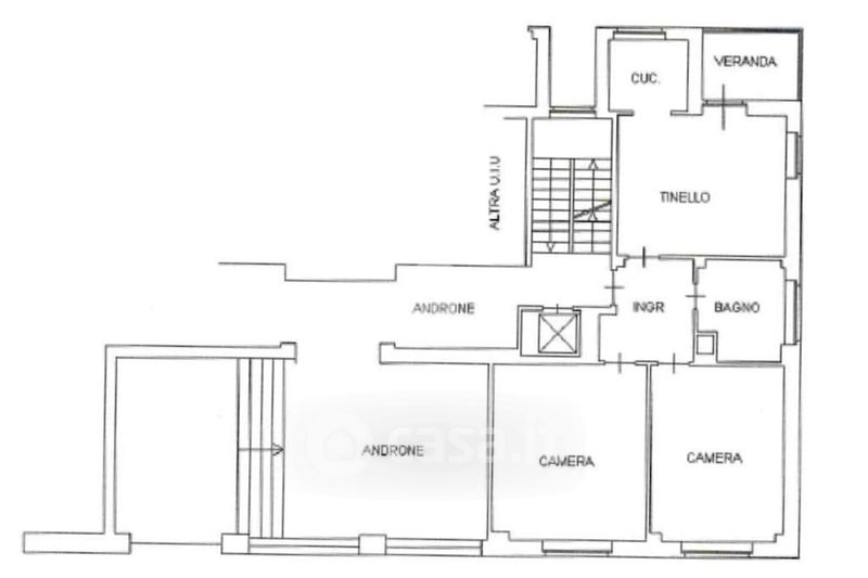
Appartamento in vendita Corso Antony 13, Collegno
Salva
Casa.it
1/27
  • Street View
  • Map