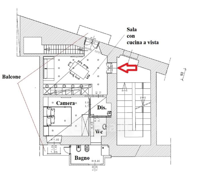
Appartamento in vendita Via San Sebastiano 7, Cuneo
Salva
Casa.it
1/16
  • Street View
  • Map