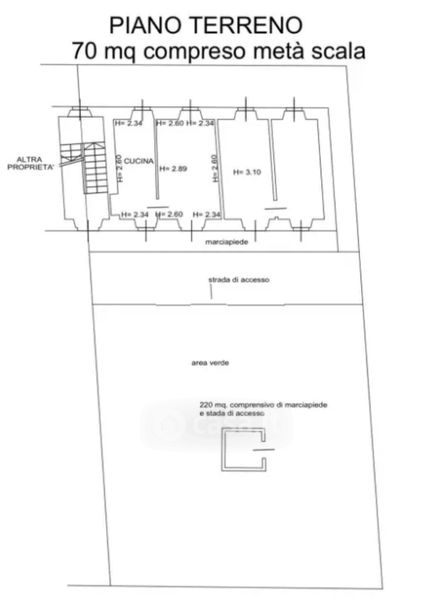
Appartamento in vendita Via San Pietro , Cureggio
Salva
Casa.it
1/6
  • Street View
  • Map