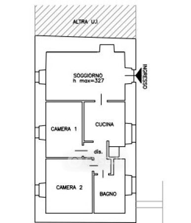
Appartamento in vendita Via Carlo Felice Trossi 144, Gaglianico
Salva
Casa.it
1/21
  • Street View
  • Map