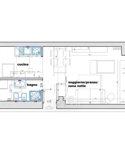
Appartamento in affitto Via C. Diana 16, Galliate
Salva
Casa.it
1/13
  • Street View
  • Map