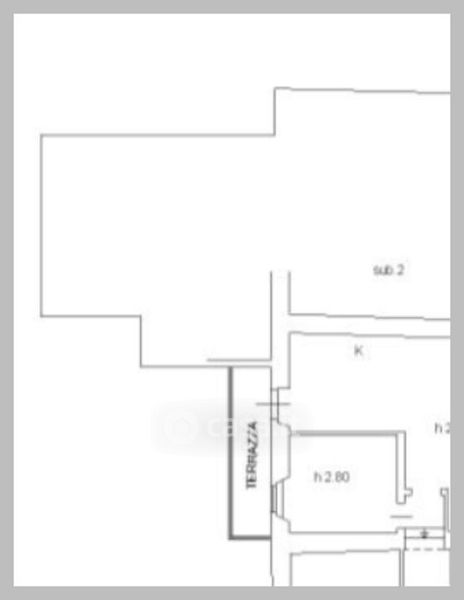
Appartamento in vendita Via Cascinetta , Gattico-Veruno
Salva
Casa.it
1/32
  • Street View
  • Map