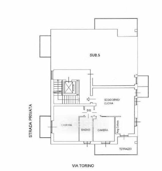
Appartamento in vendita Via Torino 184 -192, Leini
Salva
Casa.it
1/33
  • Street View
  • Map