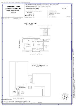
Appartamento in vendita Via Circonvallazione 29, Mathi
Salva
Casa.it
1/12
  • Street View
  • Map