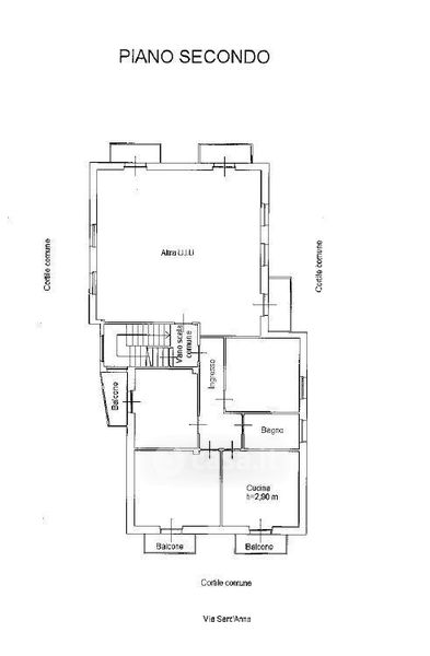
Appartamento in vendita Via Sant'Anna 52, Mondovì
Salva
Casa.it
1/34
  • Street View
  • Map