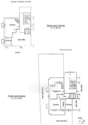
Appartamento in vendita Via San Vincenzo Dè Paoli 41, Nichelino
Salva
Casa.it
1/21
  • Street View
  • Map