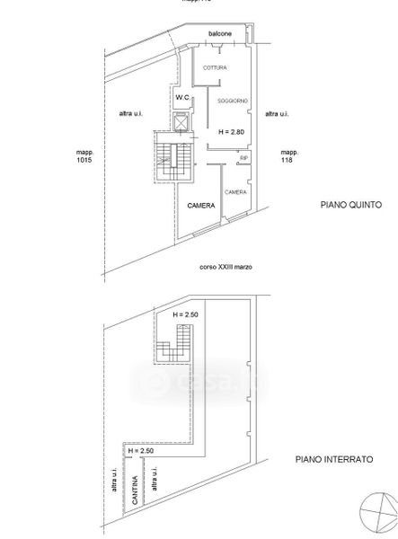
Appartamento in vendita Via XXIII Marzo 1849 114, Novara
Salva
Casa.it
1/30
  • Street View
  • Map