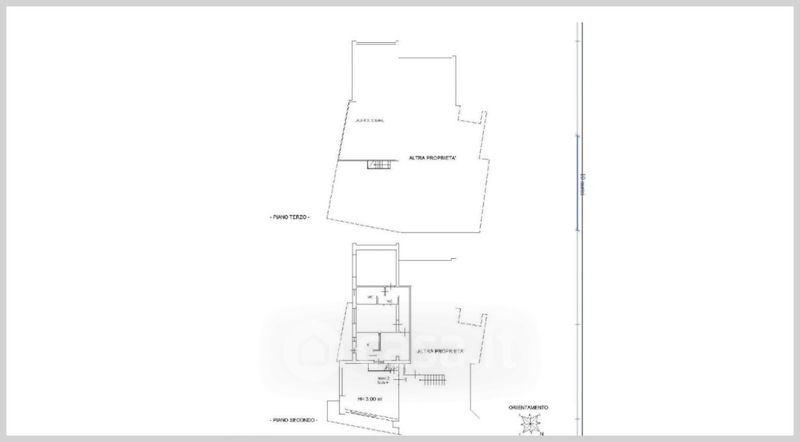
Appartamento in vendita Via Luigi Galvani , Novara
Salva
Casa.it
1/32
  • Street View
  • Map