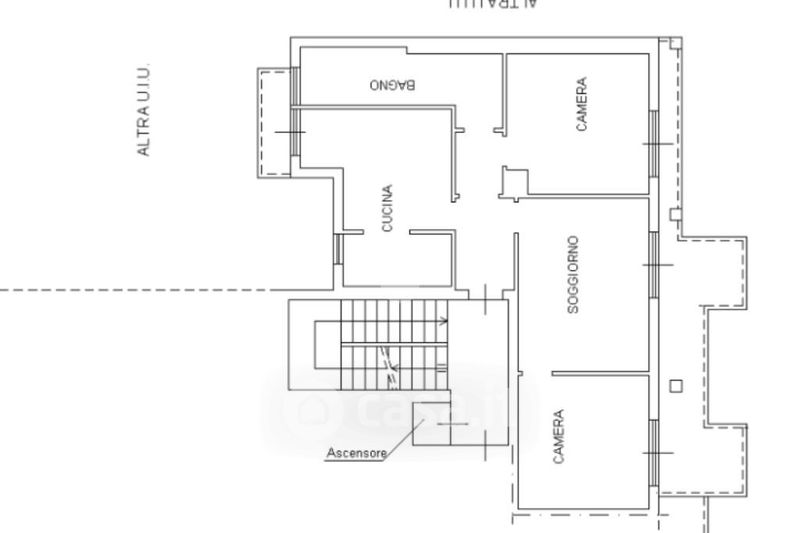
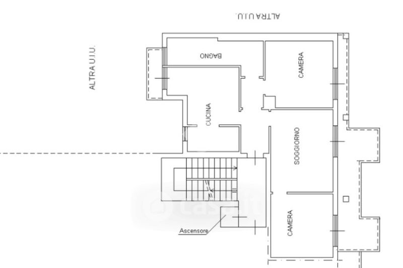
Appartamento in vendita Via dei Mille 54, Novi Ligure
Salva
Casa.it
1/26
  • Street View
  • Map