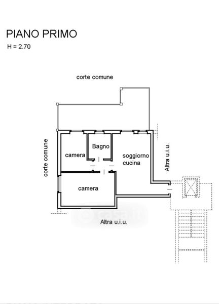
Appartamento in vendita Via Giosuè Carducci 4, Orbassano
Salva
Casa.it
1/22
  • Street View
  • Map