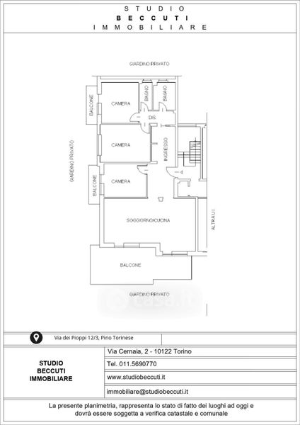
Appartamento in vendita Via dei Pioppi 12, Pino Torinese
Salva
Casa.it
1/21
  • Street View
  • Map