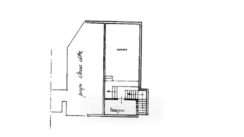
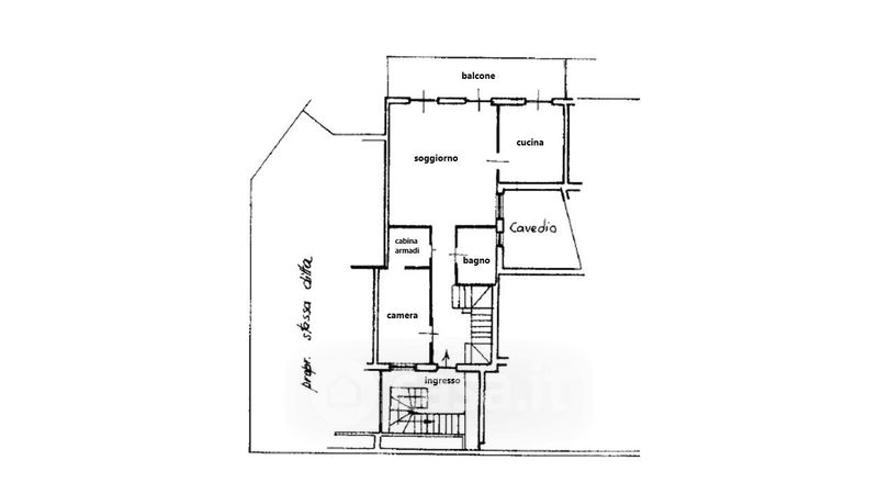
Appartamento in vendita Via Valle Balbiana 21, Pino Torinese
Salva
Casa.it
1/43
  • Street View
  • Map