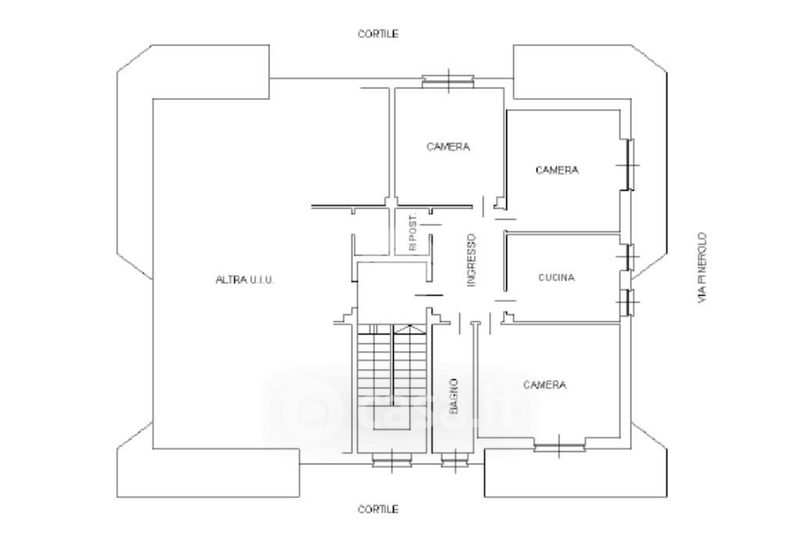
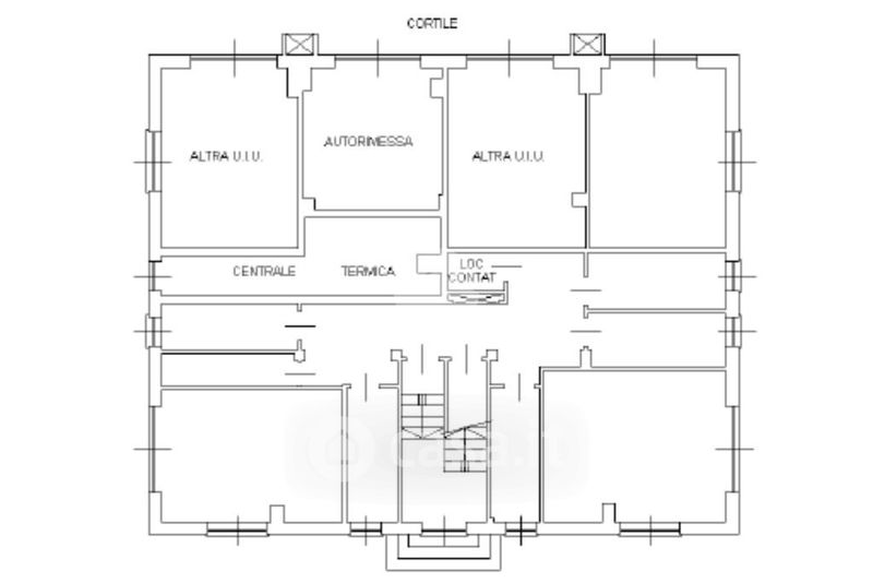
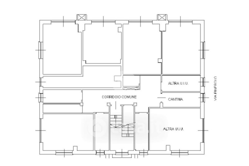
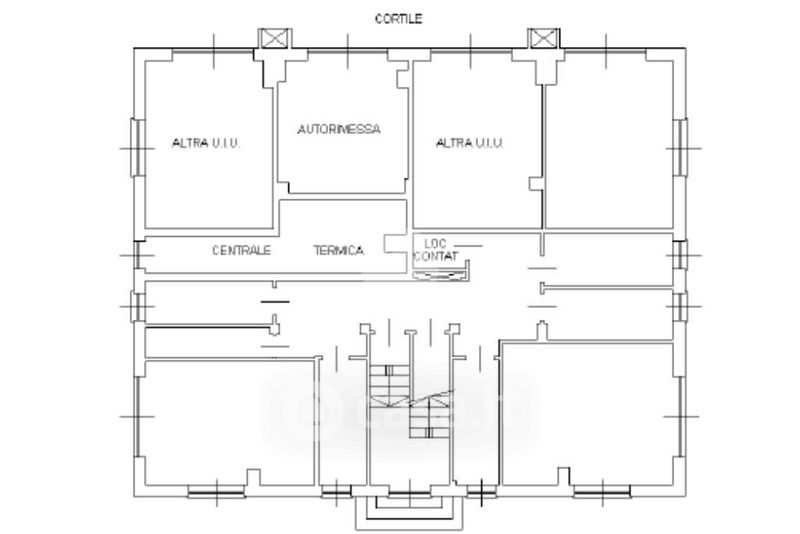
Appartamento in vendita Via Pinerolo 19, Piossasco
Salva
Casa.it
1/50
  • Street View
  • Map