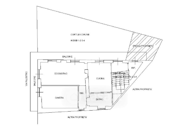
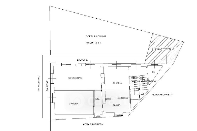
Appartamento in vendita Via Palestro 1, Piossasco
Salva
Casa.it
1/31
  • Street View
  • Map