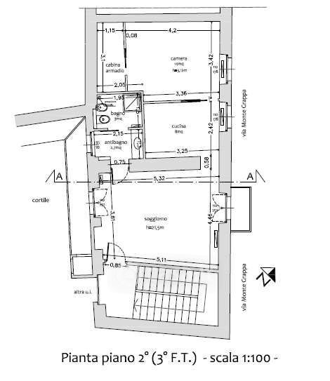
Appartamento in vendita Via Monte Grappa 2, Rivoli
Salva
Casa.it
1/37
  • Street View
  • Map