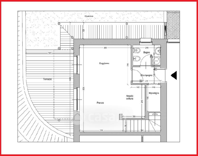
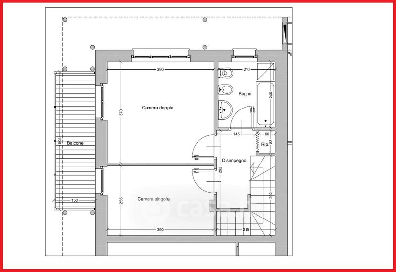
Appartamento in vendita Via Ludovico Ariosto , Roletto
Salva
Casa.it
1/24
  • Street View
  • Map