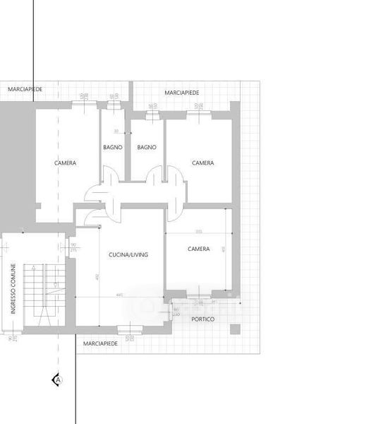
Appartamento in vendita Via Avogadro 52, San Benigno Canavese
Salva
Casa.it
1/7
  • Street View
  • Map