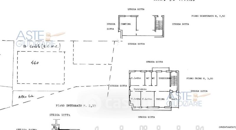
Appartamento in vendita Via A.Racca , Sanfrè
Salva
Casa.it
1/32
  • Street View
  • Map