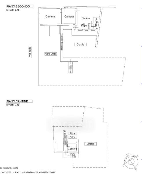
Appartamento in vendita Via Italia 58, Settimo Torinese
Salva
Casa.it
1/26
  • Street View
  • Map