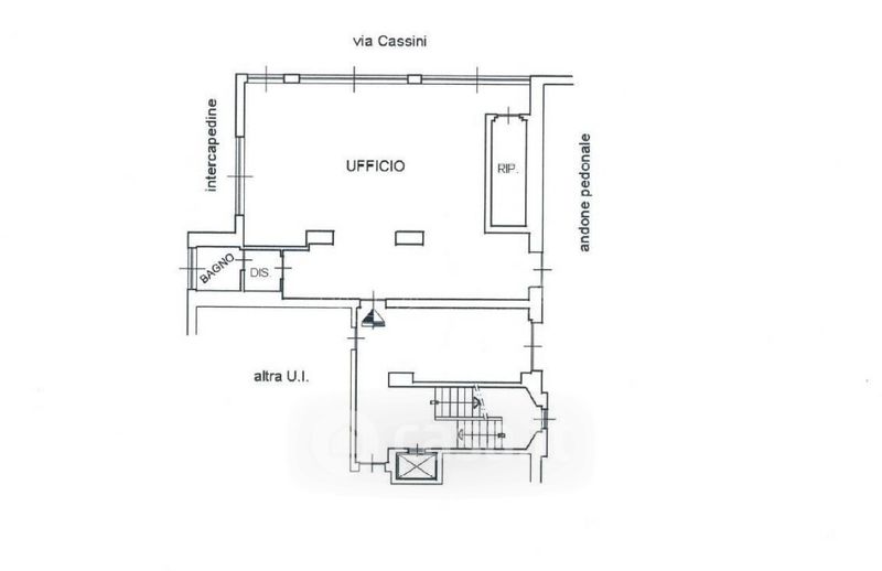
Appartamento in vendita Via Gian Domenico Cassini 7, Torino
Salva
Casa.it
1/21
  • Street View
  • Map