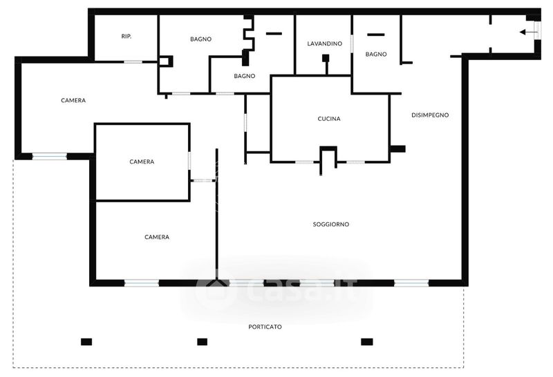
Appartamento in vendita Corso Moncalieri , Torino
Salva
Casa.it
1/42
  • Street View
  • Map