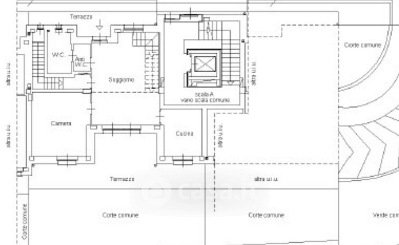
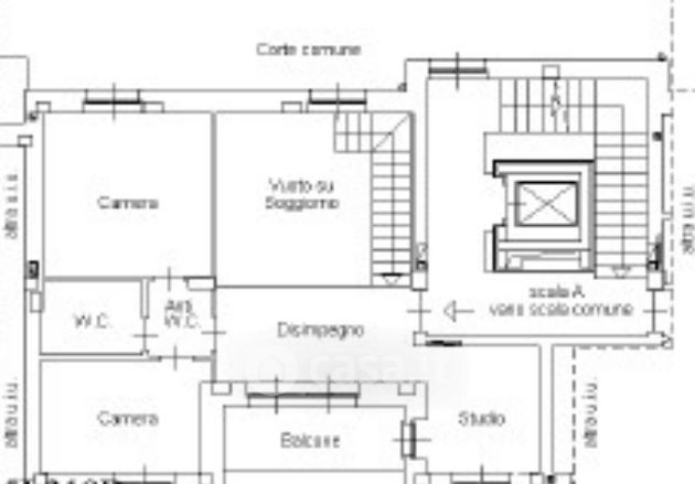
Appartamento in vendita Strada Comunale di Sassi 20, Torino
Salva
Casa.it
1/22
  • Street View
  • Map