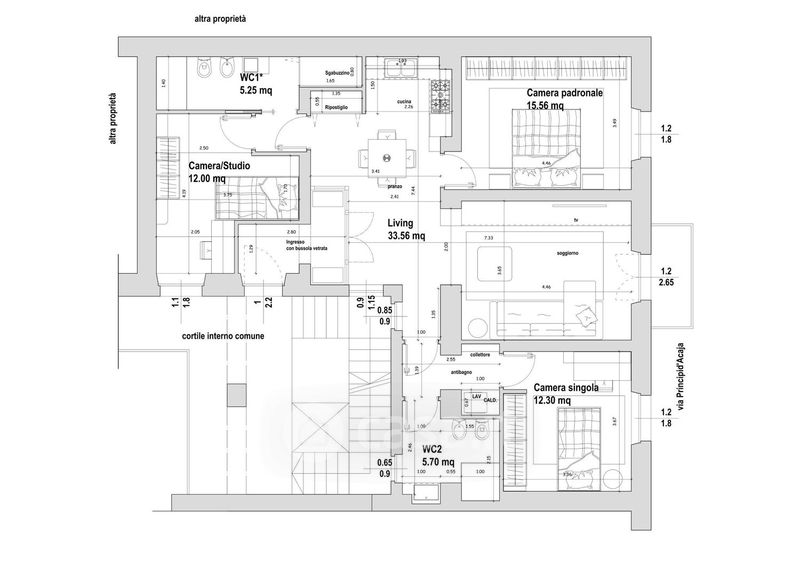
Appartamento in vendita Principi d'Acaja 16, Torino
Salva
Casa.it
1/36
  • Street View
  • Map