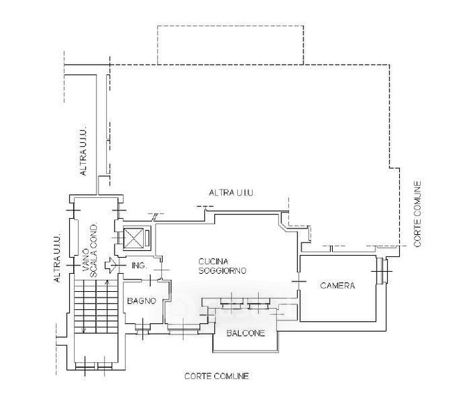
Appartamento in vendita Strada Val Salice 227, Torino
Salva
Casa.it
1/19
  • Street View
  • Map