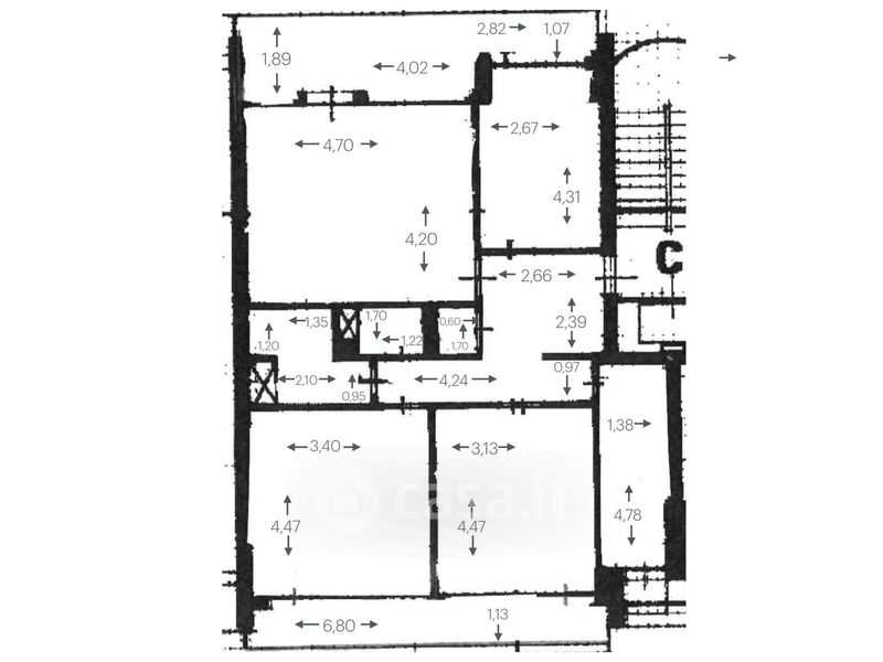
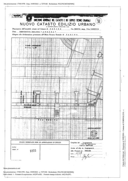
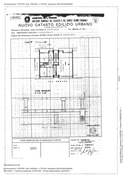
Appartamento in vendita Via Giuseppe Romita 7, Torino
Salva
Casa.it
1/58
  • Street View
  • Map