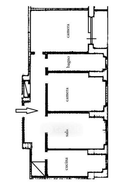
Appartamento in vendita Corso IV Novembre 110, Torino
Salva
Casa.it
1/45
  • Street View
  • Map