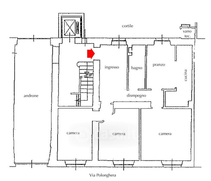
Appartamento in affitto Via Polonghera 6, Torino
Salva
Casa.it
1/20
  • Street View
  • Map