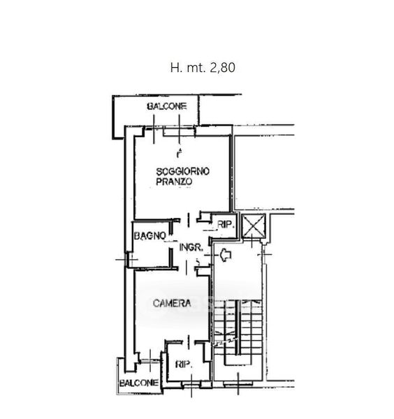
Appartamento in vendita Via Michele Berrino 3, Torino
Salva
Casa.it
1/16
  • Street View
  • Map