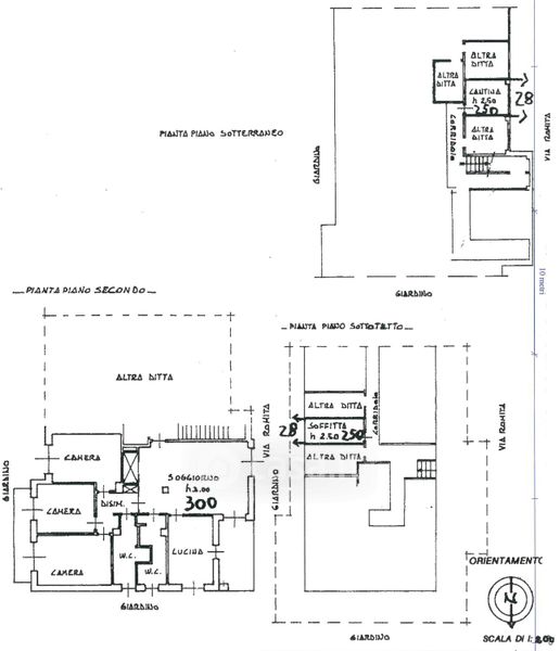
Appartamento in vendita Via Giuseppe Romita 4, Torino
Salva
Casa.it
1/42
  • Street View
  • Map