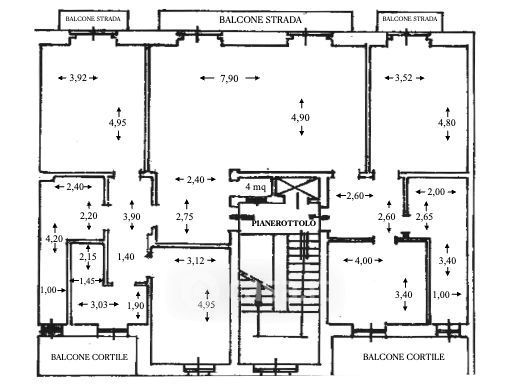
Appartamento in vendita Corso Giovanni Agnelli 10, Torino
Salva
Casa.it
1/41
  • Street View
  • Map