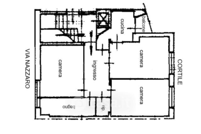
Appartamento in vendita Via Vincenzo Nazzaro , Torino
Salva
Casa.it
1/13
  • Street View
  • Map