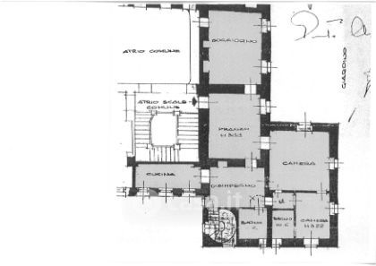
Appartamento in affitto Corso Moncalieri 167, Torino
Salva
Casa.it
1/44
  • Street View
  • Map