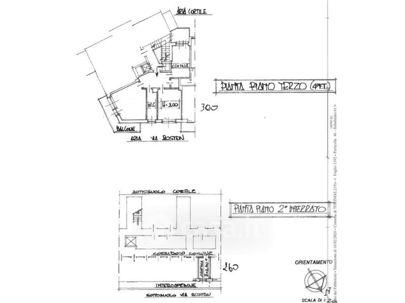
Appartamento in vendita Via Boston 121, Torino
Salva
Casa.it
1/31
  • Street View
  • Map