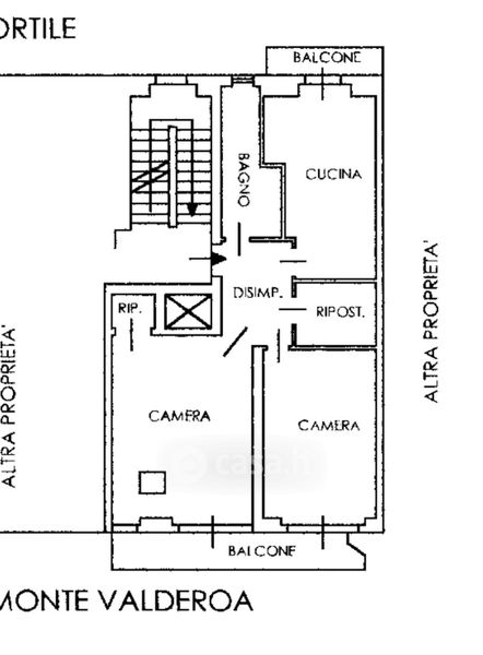
Appartamento in vendita Via Monte Valderoa 3, Torino
Salva
Casa.it
1/21
  • Street View
  • Map