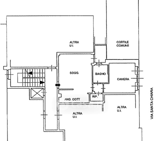
Appartamento in vendita Via Bligny 15, Torino
Salva
Casa.it
1/35
  • Street View
  • Map