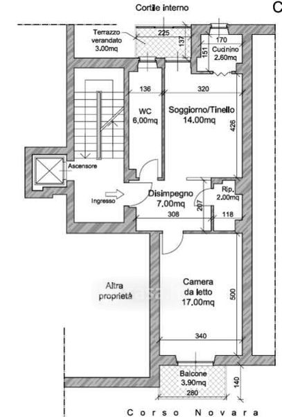
Appartamento in vendita Corso Novara 100, Torino
Salva
Casa.it
1/7
  • Street View
  • Map