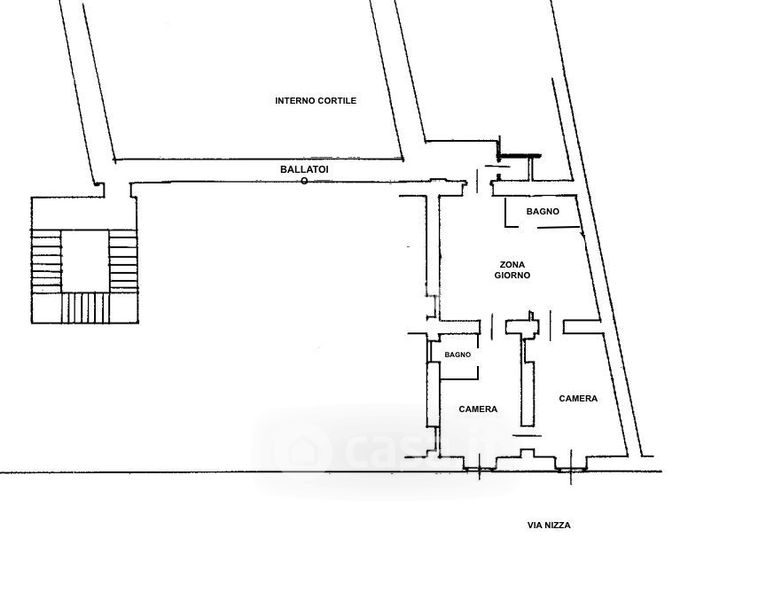
Appartamento in vendita Via Nizza 19, Torino
Salva
Casa.it
1/27
  • Street View
  • Map