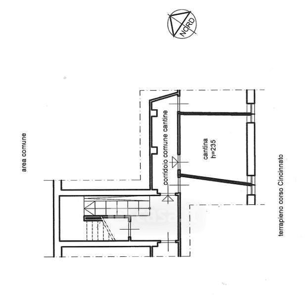
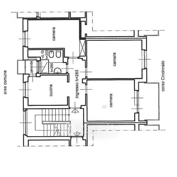
Appartamento in vendita Corso Lucio Quinzio Cincinnato 161, Torino
Salva
Casa.it
1/9
  • Street View
  • Map